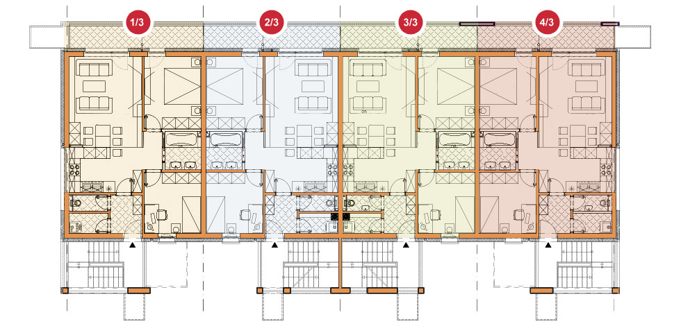
2. poschodie
Na stiahnutie
Dom G, Dom H
Dom F, Dom I
Kontakt
Riviera Park
attracktive apartments
Lokalita: Hamuliakovo
Email: info@wbpgroup.sk
attracktive apartments
Lokalita: Hamuliakovo
Email: info@wbpgroup.sk
| Tel.č.: |
| Mobil: +421 905 628 056 |
WBP Group, s.r.o.
investment corporation
investment corporation

